お問い合わせフォーム

studio E3 -自然光があふれる瀟洒なハウススタジオ-

studioE3は井の頭線の
西永福駅から徒歩5分。
閑静な住宅街にある
2階建てのハウススタジオです。

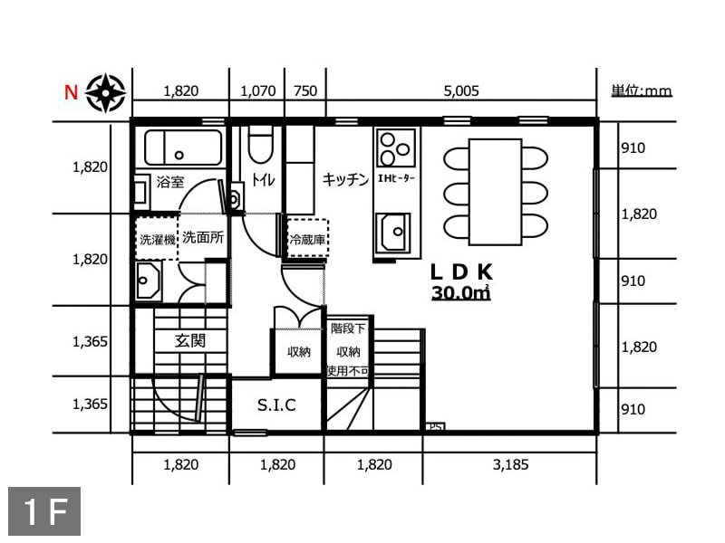
1F

南向き2つの大きな窓から自然光がたっぷり注ぎ、対面式キッチンを備えたLDK設計。
キッチンの背景には大型キッチン収納を備えています。
冷蔵庫や電子レンジ、IHコンロなどの機材をそろえており、調理シーンやレシピ動画の撮影におすすめです。

6名掛けの大きなリビングテーブルがあるダイニングでは、食事シーンの撮影にご利用いただけます。
バスルーム、トイレは、掃除グッズや日用品の使用イメージカット等にも。
シャッターを閉めて外光遮断ができますので、ナイトシーンの撮影も可能です。

面積
52.58平米
天井高
2.4m
電気容量
100V60A

※室内は全て家庭用コンセントになります。
※C型30Aコンセントが外部に2口設置されております。
※C型コンセントを利用される場合は、一日ごとの別途利用料を頂戴致します。
室内の設備
  • Wi-Fi完備
  • 階段
  • キッチン
  • 洗面所
  • トイレ
  • 洗濯機
  • 浴室

2F

ウォークインクローゼットを備えており、生活雑貨やアパレル商品のプロモーションカットに。
また、白壁をバッグに自然光を活かして撮影いただけます。
2つの洋室を控室やモニタールーム・メイクルームとしてもご利用いただけ、スペックとしても便利な構造になっています。
事前相談でベランダバルコニーでの撮影も可能ですので、お気軽にご相談ください。

面積
51.69平米
天井高
2.4m
電気容量
100V60A

※室内は全て家庭用コンセントになります。
※C型30Aコンセントが外部に2口設置されております。
※C型コンセントを利用される場合は、一日ごとの別途利用料を頂戴致します。
室内の設備
  • Wi-Fi完備
  • 階段
  • 洗面所
  • トイレ
  • ウォークインクローゼット
  • ベランダバルコニー ※要相談

Flow
ご利用の流れ

Step 01

ウェブのお問い合わせフォームに必要事項を入力の上、ご連絡ください。

Step 02

担当者より、電話、またはメールにて、ご返信をさせていただきます。

Step 03

担当者とお客様と事前にヒヤリングを含めたお打ち合わせをさせていただきます。

Step 04

申込書をご提出いただき正式な契約となります。

Time&Price
営業時間と料金について

案内可能時間
8:00〜20:00
最低利用時間
4時間

ご利用内容によっては時間を制限させて頂くことがございます

スチール撮影

ご利用の時間帯 1時間あたり
平日(9:00-19:00) ¥11,000
平日(8:00-9:00/19:00-20:00) ¥22,000
土日祝(9:00-19:00) ¥22,000
土日祝(8:00-9:00/19:00-20:00) ¥33,000

ムービー撮影

ご利用の時間帯 1時間あたり
平日(9:00-19:00) ¥16,500
平日(8:00-9:00/19:00-20:00) ¥27,500
土日祝(9:00-19:00) ¥27,500
土日祝(8:00-9:00/19:00-20:00) ¥38,500
  • 料金は全て税込価格となります。また予告なしに変更する場合があります。
  • 利用料金は前払い(振り込み)となります。
  • 契約締結時よりキャンセル料金発生の対象となります。
  • 延長料金は1時間毎に頂戴いたします。
  • 適格請求書(インボイス)対応の領収書発行が可能です。
  • ゴミはお持ち帰りください。

Access
アクセス

所在地
東京都杉並区永福3丁目
最寄駅
井の頭線 西永福駅より徒歩5分
駐車場
建物敷地内(普通車3台、もしくはロケバス1台と普通車1台分が無料にて駐車可能)

Equipments
設備・備品

無料の備品
  • ダイニングテーブルセット
  • 冷蔵庫
  • 電子レンジ
  • 炊飯器
  • 全自動洗濯機
  • 衣類乾燥機
有料の備品
  • ストロボ(profoto)×2

利用規約

※お問い合わせ前にご確認ください

studioE3 利用規約

本規約の適用範囲

本規約は、株式会社ミノリ(以下「当社」という。)が運営するハウススタジオstudioE3(以下「studioE3」といいます。)の利用に関し、当社及びstudioE3のご利用を希望する方および利用契約を締結された方(以下「利用者」といいます。)に適用されるものとします。利用者がstudio E3を利用するには本利用規約への同意が必用です。利用者は、本規約に従ってstudioE3をご利用ください。なお、当社は、利用者との個別の合意なしに、本規約を変更することができるものとします。

利用の用途

studioE3は、動画及び写真の撮影、studioE3が認めた撮影及び配信等の目的でご利用いただけます。なお、用途によってはご利用を制限する場合があります。 宗教や政治等の目的、法律に反する目的、その他非常識な行為等を目的とするご利用は固くお断りします。

利用時間

(1) ご利用時間は事前にお申込みを頂いた時間内となります。但し、ご利用可能時間は、原則として午前9時から午後7時までとなります。ご利用が複数日にまたがる場合も、ご利用可能時間外の利用はできません。(但し、下記(4)のとおり前後1時間の延長は可能となっております。)
(2) ご利用時間は4時間を最小時間として1時間単位で予約を承ります。
(3) ご利用時間には、準備及び後片付けの時間を含みます。搬入開始から完全搬出までご利用時間内にご利用ください。
(4) 午前8時から9時迄、もしくは午後7時から8時迄は、事前にお申込みをいただければ、別料金にて延長利用が可能となります。料金は下記ご利用料金一覧にてご確認ください。なお、当日の時間延長はお受けできない場合がありますので、前日までのお申込みをお願いします。

ご利用料金

(1) studioE3の利用料金は以下のとおりです(表示価格は全て消費税込みとなります)。
平日1時間あたり
ムービー撮影:16,500円
スチール撮影:11,000円

土日祝1時間あたり
ムービー撮影:27,500円
スチール撮影:22,000円

平日の8時から9時及び19時から20時の1時間あたり
ムービー撮影:27,500円
スチール撮影:22,000円

土日祝の8時から9時及び19時から20時の1時間あたり
ムービー撮影:33,000円
スチール撮影:27,500円

(2) ご利用料金は、予告なく変更される場合がございます。ご利用料金は、契約締結時点の料金が適用されます。
(3) 申込後にご利用時間の変更(追加)をいただいた場合、追加部分は追加申込をいただいた時点での料金が適用されます。
(4) 利用料金は、前払いとさせていただいております。契約締結後、営業日ベースで7日以内にお支払下さい。ただし、契約締結日からご利用日までの期間が7営業日以内の場合には、ご利用日前日までにお支払ください。
(5) お支払方法は、当社の別途指定する銀行口座へお振込ください。なお、銀行振り込み手数料は利用者のご負担とします。
(6) 領収書は発行しておりません。

キャンセル料

(1) ご利用契約のキャンセルについては、以下のキャンセル料金をお支払いいただきます。
契約締結時点からご利用日の14日前まで:ご利用料金の10%
ご利用日の13日前~8日前まで:ご利用料金の30%
ご利用日の7日前~3日前まで:ご利用料金の50%
ご利用日の2日前~当日まで:ご利用料金の100%

(2) 契約締結時からキャンセル料の課金対象となります。
(3) 前払いしていただいた利用料金については、(1)記載のキャンセル料に充当し、差額が生じた場合にはその金額をご返金致します。利用者都合でのキャンセルの場合、ご返金の銀行振込手数料は利用者負担となります。
(4) ご利用日が複数日にまたがる場合、上記(1)記載のキャンセル申入日はご利用日の初日から起算します。

利用の申し込み方法

(1) 申し込み受け付け期間は、studioE3のご利用日の3ヶ月前の日から申し込みを受け付けます。3ヶ月以上前の申し込みをご希望の方は別途ご相談ください。
(2) studioE3のご利用を希望される方は、担当者宛に、当社所定の利用申込書で利用契約の申込みを行ってください。
(3) 前号のお申し込み後、担当者より、利用申込者に、お電話またはメールにて、申し込み内容の確認のご連絡をさせていただきます。また、別途、利用以前にstudioE3の利用目的・利用人数その他必要事項について、事前のお打ち合わせをお願いいたします。
(4) 当社がお申込者のご利用の正式お申し込みを承諾した際に、本利用規約に基づく、 studioE3の利用に関する契約が、当社と利用申込者との間で成立するものとします。
(5) お申込者が次の各号のいずれかに該当する場合には、当社は、利用のお申し込みを承諾しない場合があります。また、利用契約が成立した後であっても、その承諾を取り消すことがあります。
① studioE3の定員数30名を超えるお申し込みの場合。(定員数以上でのご利用はできません)
② 利用契約申し込み時以外のご利用目的の場合。
③ 利用内容・形態等が不適当と判断される場合。
④ 暴力団関係者、その他反社会的団体に属する者と認められる場合。
⑤ 当社が、風紀上または安全管理上、不適当と認めた場合。

利用上の注意事項

studioE3を利用するにあたっては、下記の事項にご注意ください。

(1) studioE3の利用者は、搬出入やスタッフの出入り及び車のドアの開閉も含め、近隣住民の方々への配慮を最優先とし、静粛且つ短時間での作業をお願い致します。
(2) 初めて studioE3を利用される方は、使用申込書の他に会社案内等の資料を提出していただく場合があります。
(3) studioE3内の諸設備の操作については、当社スタッフにご確認下さい。
(4) studioE3内外の建造物、設備や什器備品等を損傷、汚損、紛失、滅失等させた場合はその原状回復に要する費用全額を弁償していただきます。また、当該の損傷、滅失等が原因で studioE3が利用できなくなった場合は、損害の実費負担に加えて、利用料金に基づいた逸失利益の額をご負担いただきます。
(5) studioE3内に特別な機器等を持ち込む場合は、事前にご相談下さい。
(6) ご利用が終了した場合は、ダイニングテーブルセット、家電等を含むすべての備品を利用前の状態に戻して下さい。
(7) ご利用時間は厳守して下さい。
(8) ご利用後、汚れが著しい場合は清掃料金を別途ご請求させていただく場合がございます。
(9) ご利用に際して発生した残材やごみ等は全てお持ち帰りください。ごみ等の処理がなされなかった場合、利用者に対して、その処分費用を別途請求させていただきます。
(10) studioE3内では、あらゆる事故等が起きないように、利用者が責任を持って管理を行って下さい。
(11) 管理運営上、必要と認める場合には、利用中の室内に当社スタッフが立ち入ることがありますので、あらかじめご了承下さい。
(12) 災害(地震・火災等)が起こった場合に備え、利用者が対応・避難できるように、現地責任者は避難経路等を事前にご確認ください。
(13) studioE3利用者の荷物及び備品等は、敷地内門扉内側に置いてください。
(14) 荷物のお預かりは、保管上のトラブルを避けるため、固くお断りいたしております。荷物・貴重品などは利用者の責任で管理してください。万が一盗難、紛失した場合でも、弊社は一切責任を負いません。

禁止事項等

studioE3の利用にあたり、下記の事項は禁止いたします。

(1) 公の秩序または善良の風俗を害する恐れのある行為。また、公序良俗に反する内容や社会通念上問題のある内容の撮影。
(2) 近隣住民への迷惑となる大きな音を出す行為。また、楽器の演奏や大音量を伴う撮影。大音量を発生させる恐れのあるもののお持ち込み。
(3) studioE3建物内の喫煙。(建物内は完全禁煙です。指定場所における喫煙を厳守してください。)
(4) 火器の使用。
(5) 電源車及びゼネレーター、スモークの持ち込み及び使用。
(6) studioE3内の壁、柱、床、天井、窓等に釘、押しピン、画鋲、強粘着テープ類を使用すること。
(7) 利用に際して持込む機材等荷物等の道路含めた敷地外、sutudioE3前駐車場及び門扉前のスペースへの放置。
(8) sutudioE3敷地内の他の建物及び指定区域以外への立ち入り。
(9) studioE3敷地外(主に道路)からの撮影および当該場所での撮影機材の設置。
(10) 敷地内の最大収容人数(30名)を超えての利用。
(11) 騒音、怒声を発することや暴力をふるうなど、他人に迷惑を及ぼす行為。
(12) 発火物や爆発物など危険物の持ち込み。
(13) 振動、臭気の発生により周囲に迷惑を及ぼす行為、またはその恐れのある行為。
(14) ごみの放置。(ごみは全て利用者がお持ち帰りください。)
(15) 暴力団関係者、その他反社会的団体に属する者のstudioE3の利用。
(16) studioE3建物全体の外観撮影及び半径500m以内での撮影。(道路使用許可を得ている撮影であっても同様とします。)
(17) 利用者が直接近隣住民の方に撮影及びそれに関わる交渉を行うこと。
(18) studioE3の近隣建物の敷地、路上等にバイク、自転車を駐輪、または自動車を駐車すること。

利用の取消 (解除)

下記のいずれかに該当する場合、当社はご利用契約を解除し、ご利用中においてもご利用の中止、退出を求めることができるものとします。この場合、受領した利用料金は返金致しません。
その際に当社に生じた損害が発生した場合は、利用者がその損害全額を賠償するものとします。また、この場合に生じる利用者のいかなる損害について当社は一切の責任を負いません。あらかじめご了承ください。

(1) 前述の禁止事項に該当する場合その他本規約をお守りいただけない場合、または、その恐れがあると認められる場合。
(2) 申し込み時の予約者情報(予約者名・法人/団体名・住所・電話番号・メールアドレス等)が虚偽であった場合
(3) 申込時の使用目的、使用方法と実際の使用目的や使用方法が著しく異なる場合や、承認された内容を許可なく変更した場合。
(4) 予約者の連絡先に連絡が取れない場合。
(5) 近隣住民に迷惑を及ぼした場合。
(6) 申し込み利用者が許可なく第三者に利用させた場合。
(7) 当社が、風紀上または安全管理上、不適当と認めた場合。
(8) 暴力団関係者、その他反社会的団体に属する者と認められる場合
(9) 午前7時以前及び午後9時以降の利用が判明した場合
(10) ご利用中に、人身事故が発生した場合、また、建物・レンタルスペース・備品等を破損・汚損・紛失した場合。

免責事項

次の各号に定める損害については、当社は一切責任を負いません。

(1) 利用者に責任のある studioE3利用の解除・取消や利用の中止による損害。
(2) 天災地変その他不可抗力で studioE3が利用できなくなったことによる一切の損害。
(3) 荷物・貴重品など利用者の所持品の盗難、紛失、損壊による損害。
(4) 利用者が本規約に定める事項に違反したことにより生じた一切の損害。
(5) 当社の落度により利用者に生じた損害の補償は、利用者のお支払いいただいた当該利用金額を上限とさせていただきます。
(6) 当社施設名称は予告なく変更となる場合があります。これにより利用者または第三者に損害が発生した場合であっても当社は一切責任を負いません。

設備に関して

(1) 室内電源は100V60Aの家庭用コンセントが利用できます。
(2) 別途屋外電源として100V60A(C型30Aのコンセントが2口)が用意されております。こちらのコンセントの利用料金は別途請求させていただきます。
(3) studioE3にはアシスタントはおりません。

反社会勢力の制限

(1) 利用者(利用者が法人である場合にはその役職員を含む)が次の各号の一に該当するときは、当社は、申込を承諾せず、また、利用契約締結後であっても、何らの催告を要さず、ただちに利用契約を解除することができるものとします。
① 集団的にもしくは常習的に暴力的不法行為もしくは違法行為を行うことを助長するおそれがある団体、かかる団体の構成員である(もしくは構成員であった)者、またはかかる団体もしくはかかる団体の構成員の影響下にある(もしくは影響下にあった)者
② 無差別大量殺人行為を行った団体の規制に関する法律に基づき処分を受けた団体もしくはかかる団体の構成員である(もしくは構成員であった)者、またはかかる団体の構成員の影響下にある(もしくは影響下にあった)者
③ 組織的な犯罪の処罰及び犯罪収監の規制等に関する法律に定める犯罪収監等隠匿及び犯罪収監等収受を行いまたは行っている疑いのある者
④ 貸金業の規制等に関する法律に定義される取立て制限者またはこれらに類する者
⑤ 風俗営業等の規制及び業務の適正化等に関する法律に定義される風俗営業もしくは性風俗関連特殊営業を行う者
⑥ 上記の他これらに類する団体、もしくはかかる団体の構成員である(もしくは構成員であった)者またはかかる団体の構成員の影響下にある(もしくは影響下にあった)者
⑦ 人を威迫し、またはその私生活もしくは業務の平穏を害するような言動により人を困惑させるおそれのある者
⑧ その他公序良俗に反すると認められる者
⑨ 前(1)及至(8)に定める者と取引のある者

(2) 上記(1)により利用契約が解除された場合、利用者が支払った利用料金は返金いたしません。

個人情報保護方針

当社は、以下の方針に基づき、利用者を識別しうる情報(以下「個人情報」といいます。)を取り扱わせていただきます。

(1) 個人情報の取得・利用について
当社は、業務を遂行するうえで、利用者の個人情報 (氏名、性別、電話番号、メールアドレス、勤務先等) を取得させていただいております。当社は、利用者の個人情報を以下の目的に利用いたします。
① サービス・商品に関する利用者との契約の履行のため
② サービス・商品の継続的なお取引における管理およびこれに伴う各種ご案内の送付・連絡のため
③ ダイレクトメール・電子メール・電話等による情報提供、各種ご案内等、サービスや商品に関する営業活動を行うため
④ 顧客動向分析もしくはサービス・商品開発等の調査分析のため
⑤ 事故等緊急の際の連絡のため
⑥ 保険会社(保険代理店を含む)への各種手続きに関わる当社の事務処理のため
⑦ 各種お取引解約後の事後管理のため
当社は、利用者から直接書面等により個人情報を取得する場合、その利用目的を明示するものとし、それ以外の場合についても、その利用目的を通知または公表いたします。当社は、お客様の事前の同意がある場合、または、法令により許される場合でない限り、上記の利用目的の達成に必要な範囲を超えて、利用者の個人情報を利用いたしません。
(2) 個人情報の管理
当社は、個人情報の漏洩、滅失または毀損を防止するために、必要な措置を講じ、利用者の個人情報を適切に管理します。また、当社は、利用者の個人情報の取り扱いに関して、従業者に対して適切な監督を行うとともに、利用者の個人情報の取り扱いを第三者に委託する際には、委託先に対しても個人情報を適切に管理するよう監督いたします。

(3) 第三者への提供について
当社は、利用者の事前の同意がある場合、法令に基づく場合、または、利用目的の達成に必要な範囲内で第三者に委託する場合その他法令により許される場合でない限り、利用者の個人情報を第三者に提供することはありません。

(4) 個人情報の開示、訂正、利用停止等の請求手続について
利用者がご自身の個人情報の利用目的の通知、開示、訂正、利用停止を希望される場合、下記記載のメールアドレス宛ご連絡ください。利用者から開示等の求めを受けた場合、当社は利用者ご本人からの求めであることを確認させていただいたうえで、法令に定めるところに従って、これに応じるものとします。

開示等請求のための弊社メールアドレス minori@minori.co.jp